Lasst mich nicht im Regen stehen
"Liebe Vinnhorsterinnen und Vinnhorster,
liebe Freunde der Ortsfeuerwehr, 
kennen Sie mich? Nein?! Ich bin das „neue“ Fahrzeug der Ortsfeuerwehr Vinnhorst – eine Drehleiter. Mit meinen drei Achsen – wovon zwei lenkbar sind – sehe ich nicht nur ganz besonders aus, sondern bin dadurch auch unglaublich wendig. Mit meiner dreiköpfigen Besatzung und einer max. Rettungshöhe von 30m rücke ich bereits kurze Augenblicke nach der Alarmierung – meist als 2. Fahrzeug – aus und bin gern gesehen bei der Menschenrettung sowie Brandbekämpfung in den oberen Geschossen, aber auch bei Stürmen zur Technischen Hilfeleistung.
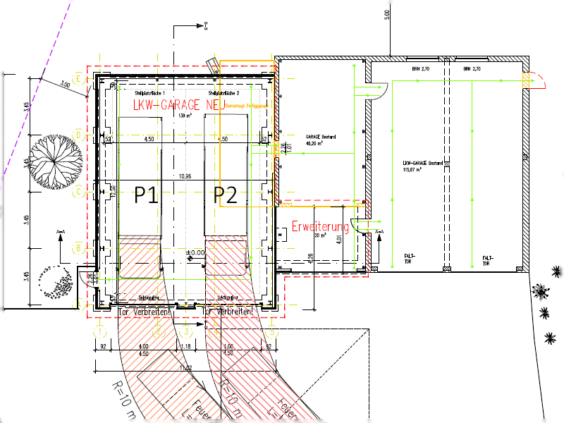
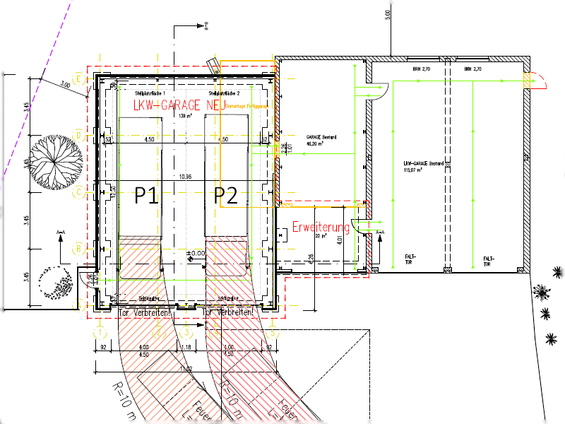
Seit Dezember 2013 verrichte ich meinen Dienst – mal weniger, mal mehr – vom Standort Feuerwehrhaus Vinnhorst für Sie und Ihre Mitmenschen. Dieser Zustand soll nun dauerhaft geändert werden. Ein Hallenanbau soll hier Abhilfe schaffen, sodass ich weder auswärts noch draußen übernachten muss. Bitte unterstützen Sie dieses Vorhaben, damit ich demnächst täglich für Sie und Ihre Sicherheit zur Verfügung stehe.
Ihre Vinnhorster Drehleiter"

Liebe Vinnhorster,
wir, die Ortsfeuerwehr Vinnhorst, haben nicht nur eine lange Tradition, sondern wollen auch in Zukunft als eine der schlagkräftigsten Feuerwehren der Region Hannover für unsere Bürgerinnen und Bürger jederzeit zur Verfügung stehen.
Neben den 55 aktiven Kräften der Einsatzabteilung, die zusätzlich noch in drei Fachgruppen der Landeshauptstadt Hannover schnell und effektiv mitwirken, können wir auch seit 1958 auf eine leistungsstarke und kontinuierliche Nachwuchsarbeit zurückblicken.
Der gemeinnützige Förderverein der Freiwilligen Feuerwehr Vinnhorst e.V. hat nun unter der Schirmherrschaft des Stadtbezirksrates Nord einen Bauantrag für die o.g. Hallenerweiterung gestellt und bittet Sie um Ihr Engagement.
Bitte helfen Sie uns mit Ihrer Spende, dieses Mammutprojekt zu realisieren. Konkret möchten wir möglichst viele Gewerke (z.B. Elektrik) in Eigenleistung durchführen und benötigen dafür Ihre finanzielle Unterstützung, um das erforderliche Material zu erwerben.
Spenden können sie auf das Konto des Fördervereins der FF Vinnhorst e.V., IBAN: DE88 2519 0001 0771 8047 00 BIC: VOHADE2HXXX, als gemeinnütziger Förderverein erstellen wir Ihnen selbstverständlich gern eine entsprechende Zuwendungsbestätigung.
Wenn Sie Fragen zu diesem Projekt haben oder über den monetären Rahmen hinaus Leistungen anbieten möchten, wenden Sie sich bitte jederzeit vertrauensvoll an den Vorsitzenden des Fördervereins (Tel.: 0511/7850752 dienstags von 18:00 - 20:00 Uhr oder per E-Mail Diese E-Mail-Adresse ist vor Spambots geschützt! Zur Anzeige muss JavaScript eingeschaltet sein!).
Vorsitzender des Fördervereins Stadtbezirksbürgermeisterin Nord
